Сдам в аренду склад 2391.2 м.кв.

на карте
Объявление в архиве
2 032 520 руб. / мес
2391.2 м2
Новосибирск , Первомайский, Бердское шоссе, д.зд4/7
Максим
Контактные данные скрыты, так как объявление находится в архиве
Данные актуальны на 27.02.2026
Пожаловаться на объявление
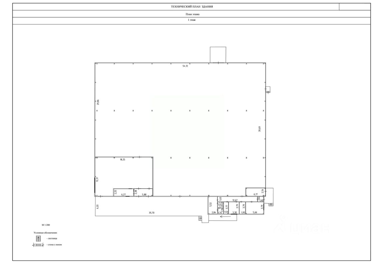
Предлагаем в аренду современное торгово-складское здание в Первомайском районе Новосибирска. Идеальное решение для крупного магазина, производственного предприятия или регионального распределительного центра. Кратко о здании Адрес: г. Новосибирск, Первомайский район, шоссе Бердское, д. 4/7. Общая площадь: 2391,2 м2. Этажность: 1 этаж. Статус: нежилое здание, полностью готово к эксплуатации. Год постройки: 2024. Продуманная планировка позволяет легко адаптировать пространство под ваш бизнес: просторный торгововыставочный зал — отлично подойдёт для розницы; большой склад - идеален для оптовой торговли и дистрибуции; административные и бытовые помещения (кабинет, комната приёма пищи, гардероб, санузлы, помещение для охраны) — удобно для персонала и управления производственными процессами; Локация: расположение вдоль Бердского шоссе обеспечивает удобный подъезд для грузового и легкового транспорта; близость к основным магистралям и железнодорожному узлу позволит легко организовать поставки; Для кого подойдёт: крупные розничные магазины и гипермаркеты; складские и логистические комплексы; производственные предприятия среднего масштаба; торговосервисные центры и распределительные центры. Что уже готово для вашего бизнеса все коммуникации подключены и работают (электричество, вода, газ, канализация); соблюдены современные нормы пожарной безопасности; объект спроектирован с учётом требований к коммерческой недвижимости — не требует капремонта или переделок; обеспечена доступность для маломобильных групп населения. Инфраструктура для клиентов и сотрудников обустроенная парковка на 33 места (в том числе 4 места для маломобильных граждан); удобный подъезд и размещение транспорта. Начните бизнес без лишних хлопот Заезжайте и запускайте проект — не тратьте время на ремонт и подключение сетей! Не упустите шанс арендовать современное торговое здание в перспективной локации — звоните прямо сейчас!

Дополнительная информация

Тип здания Отдельное здание Вход Отдельный Ремонт С ремонтом Интернет Есть Кондиционер Нет Вентиляция Есть Пожарная сигнализация Есть Ответственное хранение -
Грузовой лифт - Подъезд для фуры - Наличие пандуса - Наличие железной дороги - 3PL услуги - Электроэнергия 418 кВт Высота потолков 8.5 м Кран-балка -
Динамика изменения цен на рынке недвижимости ?

По городу Новосибирск, в категории Складские помещения
За последние полгода средняя сумма аренды за кв.м. выросла на 19 руб. Колебание цен происходило от 365 руб. до 384 руб. Тендов к значительному изменению цены в последнем месяце не наблюдается.
Вход в личный кабинет